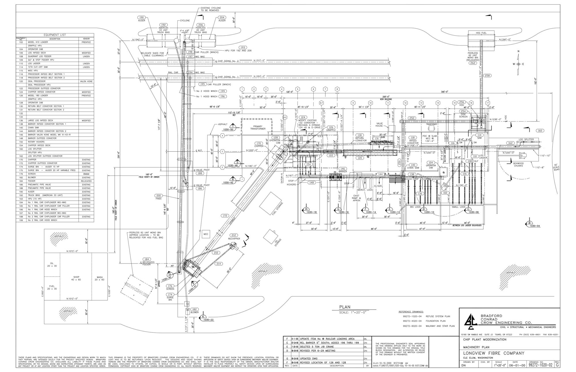
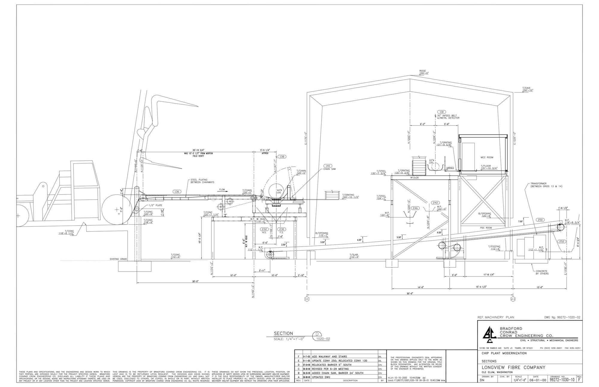
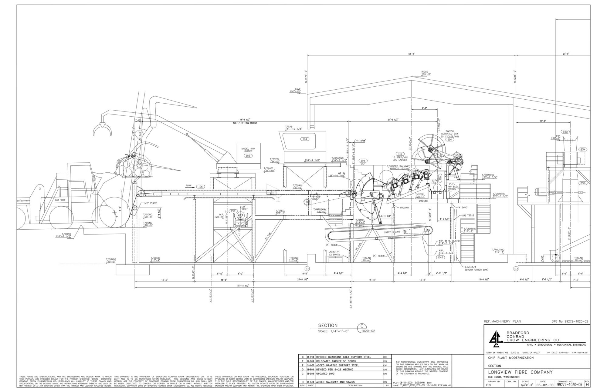
Cle Elum, WA
Engineering and design for Chip Plant Modernization – complete remodel utilizing the existing chipper.
Notice: JavaScript is required for this content.
Accessibility Tools